More than 30 years experience using Autocad, this includes creating architectural drawings, space plans, site surveys - including the surveys themselves, creating visuals, presentations, quotes and specifications, working for furniture suppliers, design and build companies, primarily within Offices and Schools. I have over 20 years experience as a commercial space planner.
Other software used: Sketchup, 3d Studio Max, Adobe Photoshop, Illustrator and Indesign (marketing materials), Adobe Dreamweaver (websites) Microsoft Office including Excel and Powerpoint (primarily for creating quotes and presentations).
Fully insured - public liability £2 million, Professional Indemnity £0.5 million
Move over an image for more information.
Commercial and residential site surveys, site plans for letting agents, full building surveys, 2d and 3d cad plans, 3d visuals, installation drawings, furniture advice and procurement, converting drawings to and from PDF
A good space plan takes into account future growth or decline, new ways of working, utilising existing furniture, departmental and team groupings and a range of other factors, I use the latest CAD software to achieve this.
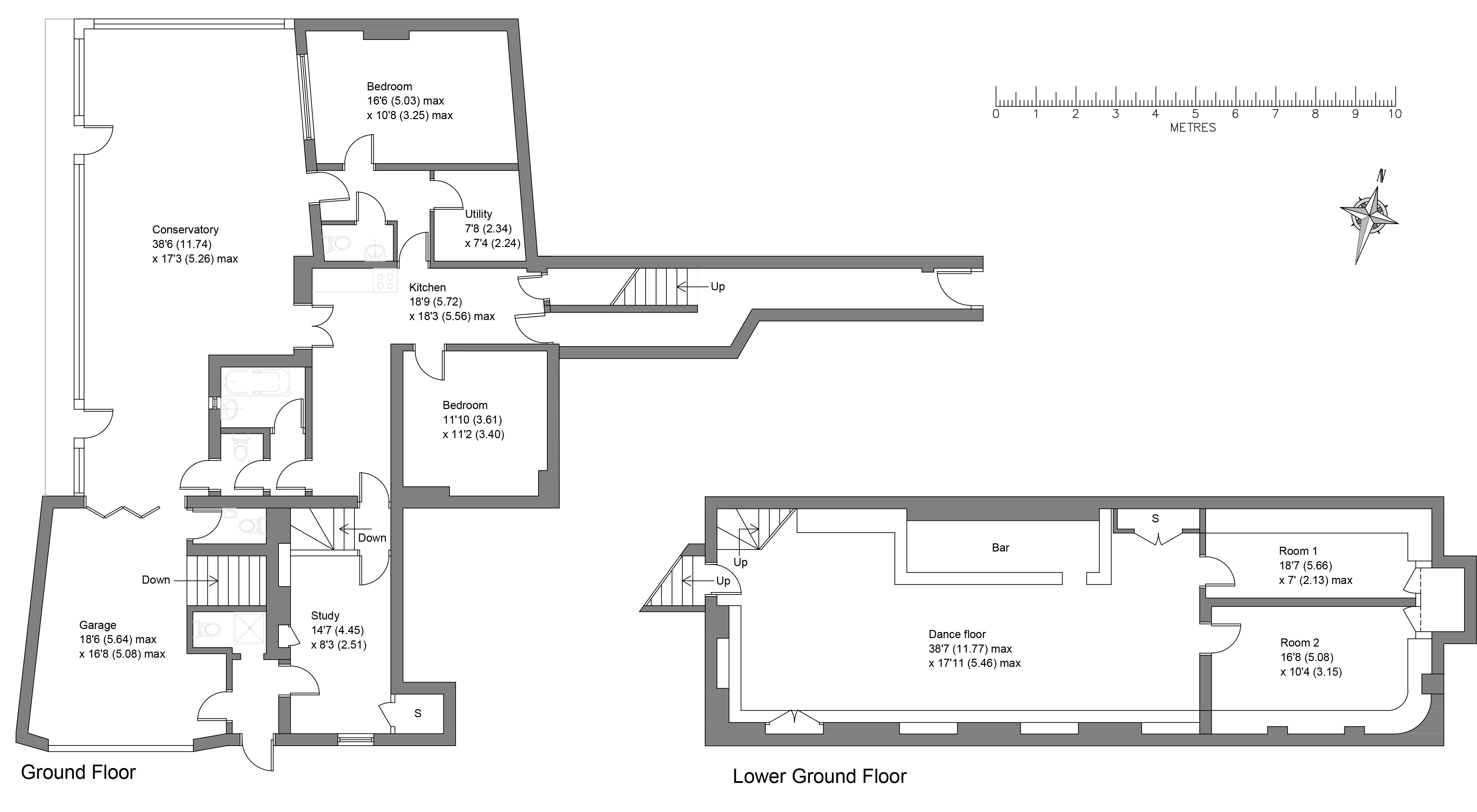
Site visit to measure the space or can be drawn from sketches supplied. Surveys drawn up using Autocad and normally sent as dwg or pdf file, can also be saved to sketchup
I can suggest various suppliers or work with furniture suppliers using their preferred range of furniture
Please fill out the form below if you'd like to get in touch, alternatively you can email me or call me, details are just below this form.
21 Cranston Way
Crawley Down, West Sussex
RH10 4XX UK
jon@jnhunt.co.uk
info@jnhunt.co.uk
Phone: (+44) 07525 456730